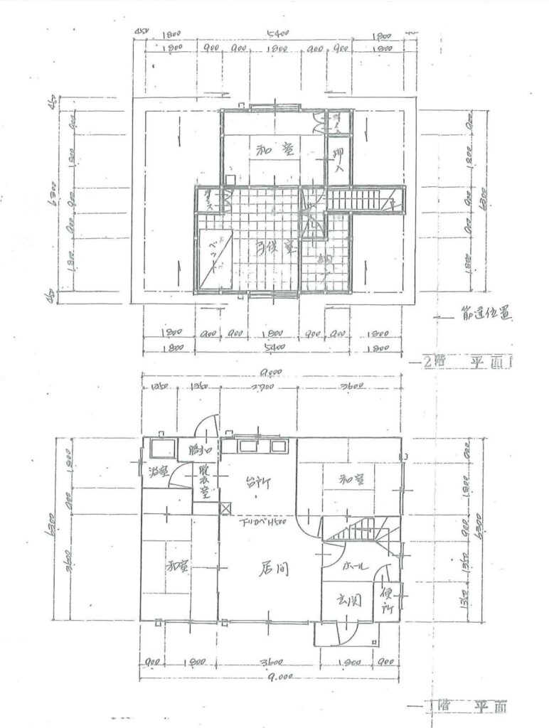
【所在地】 北海道芦別市本町1148番61 【交 通】 JR根室本線芦別駅徒歩11分 【間 取】 4LDK

※ 2階の一部、現況と間取図異なります









【お申込みにあたっての留意事項】 ①本物件内容へのご質問、ならびに譲渡希望者さまからお預かりしている物件資料の提供以外については、hanaco不動産では仲介業務をおこなってませんのでご対応できません
②譲り受けを希望される方は、必ずご自身の責任においてご確認ください
③本物件に関しては現況有姿にて無償で贈与するものですが、贈与を受けるにあたり所有権移転登記費用や各種税金などが発生します。なお、所有権移転登記手続きは譲渡希望者さま指定の司法書士をご利用いただきます
④本物件の譲渡はお申込み順ではございません。譲渡希望者さまの事情により譲渡ができなくなった場合でもhanaco不動産は一切を負いかねますのでご了承ください
⑤資料請求・お申込みを希望される方は、下部にある「お問い合わせ」(物件番号を必ず記載してください)から請求してください
贈与税について ☞ 国税庁ホームページ 不動産取得税について ☞ 北海道庁ホームページ
【物件特徴】閑静な住宅街に立地する住宅で、家庭菜園も可能な庭のある物件です。相続により取得したものの利用することが無いため譲渡するものです。住居・物置内にある残置物は譲受者にて引き取っていただきます。近隣に迷惑をかけることなく、有効活用していただける方に譲渡を希望します。
【物件の概要】 土地面積 : 258.00㎡ 権 利 : 所有権 地 目 : 宅地 建物面積 : 89.91㎡ 建物構造 : 木造亜鉛メッキ鋼板葺2階建 建築年月 : 昭和54年新築 付属建物 : 車庫 都市計画 : 非線引き区域 用途地域 : 第一種住居専用地域(建ぺい率40%・容積率60%) 現 況 : 空家 譲渡時期 : 即時 ライフライン : 電気、プロパンガス、トイレ 備 考 : 上記概要と異なる場合は現況のとおりとなります
【提供できる資料(所有者保有)】 ①土地・建物登記簿謄本 ②固定資産課税明細書 ③地図に準ずる図面・地積測量図・建物図面(法務局備え付け) ④建築確認通知書・検査済証 上記書類が必要な方は下記の「お問い合わせ」よりご請求ください
【物件調査先一覧】 地積測量図・建物平面図などについて ☞札幌法務局滝川支局 建築確認申請書類関係について ☞空知総合振興局建設指導課・芦別市役所都市建設課建築係 道路幅員などについて ☞芦別市役所都市建設課土木係 上下水道埋設状況について ☞芦別市役所上下水道課施設係
